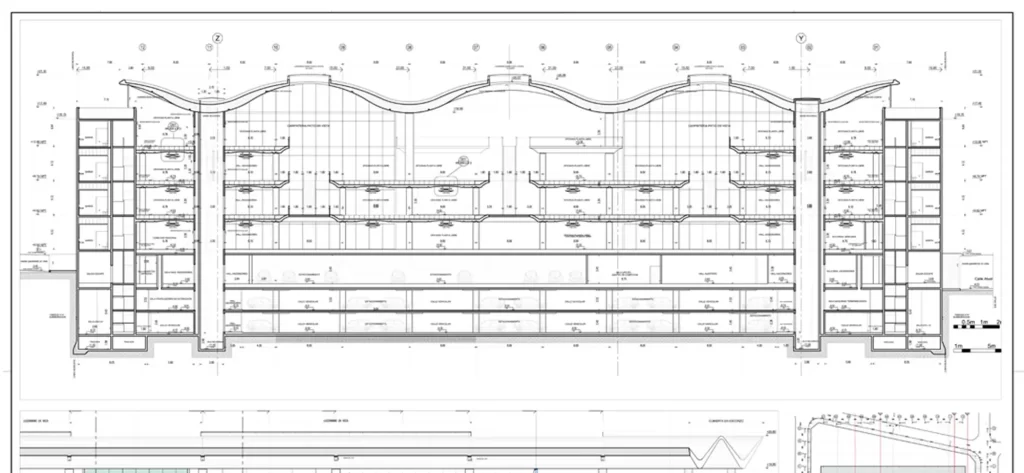
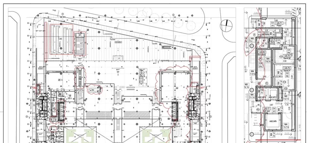
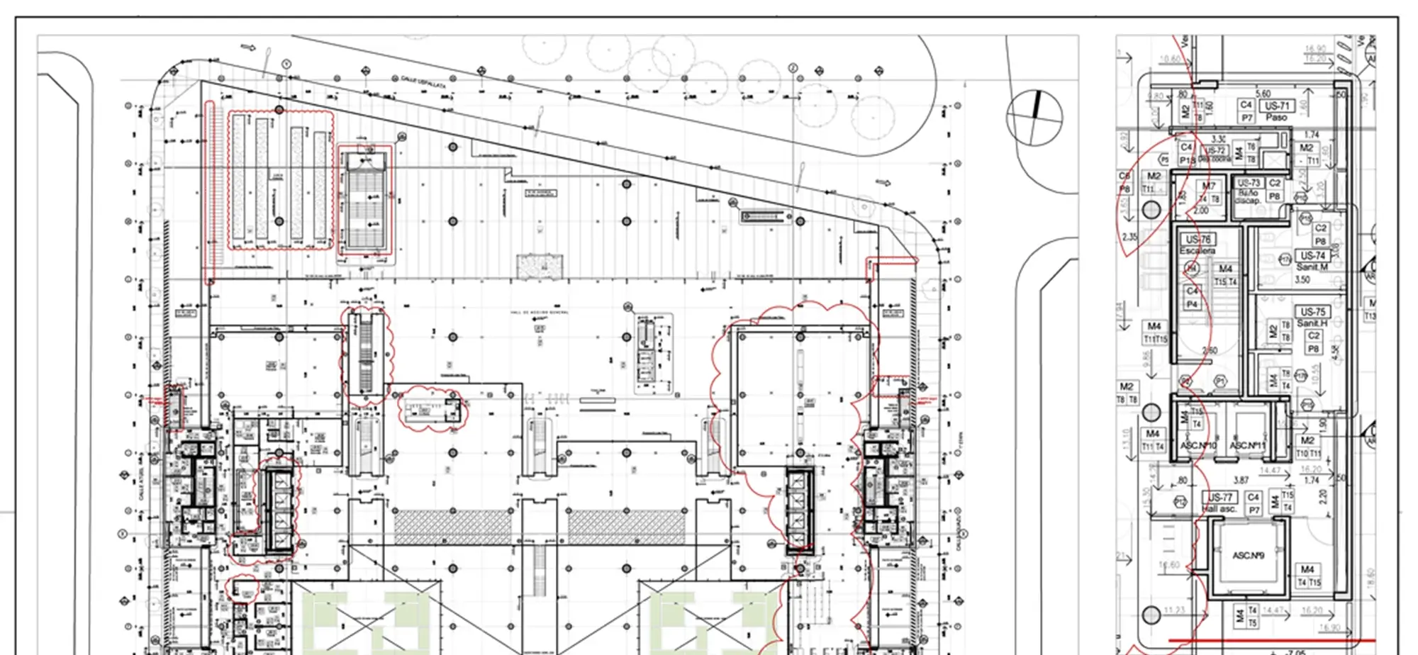
Documentation management of glass facades, internal yards, skylights and auditorium; metallic and concrete brisoleils, wooden coatings and HVAC facilities (up to 50 people). Documentation of high-cut concrete-seen structure: vertical circulations, stairs, floors and the unique ondulated roof. Architecture, structure and formworks details. Area +430k sqf. Years: 2011 to 2013.
The Norman Foster´s Buenos Aires City Hall is one of the most representative buildings in the city. In 2017 certified LEED Gold.
Images and visual contents are property of CRIBA S.A. and Foster&Partners Architects








Related contents
Blog article Foster, Bonavena y Huracán
@elaskardamian pictures
Related links